S305改造真的要來了!預計明年3月開工,官方回復在此!
2018-12-13 09:12:46
s305,連接自貢、榮縣、富順是咱們自貢一條交通運輸,承載力較大的一條路線,關于它的路況、設施在自貢的小伙伴們心中是十分關注的,關于s305路況的吐槽也是層出不窮。
現在大家不用擔心啦,有人替咱們在地方領導留言版,將s305的“未來”問的一清二楚喲!305省道擴寬改造何時開工建設。
網友提問:本人是外地來自貢投資發展生活的,自稱為新貢人,來自貢快一年了,對于自貢的發展也是比較關心,目前有兩個意見,第一:305省道自貢城區段,路面窄,切路況差,嚴重影響城市形象和發展,外地人一到自貢,看路都不想來投資生活了,據說要改造擴寬,請問何時動工.規劃是怎樣?第二:自貢現在再搞老工業城市轉型,打造以鹽,龍,燈,文化發展,個人意見覺得,自貢作為一個燈城,除了過年時候的燈會,平時根本不能突出燈城的概念,晚上黑燈瞎火的,更不要說有城市燈光夜景,應該多多打造一些城市燈光夜景,多一些夜晚建筑物燈光景觀改造. 以上是本人的一些建議…
其中,305省道拓寬改造何時開工建設,這個廣大群眾關心的問題,自貢市住房和城鄉建設局回復啦!305省道拓寬改造,預計于2019年3月前開工建設!
“305省道城區段拓寬改造”屬于富榮產城融合帶基礎設施建設項目(C、D段)工程的建設內容。自貢市富榮產城融合帶基礎設施建設項目起于榮縣主城區的藍帝大道南側,經貢井區、自流井區、高新區沿灘區,止于富順縣北環路釜溪大橋西側,道路全長66.7公里,分為A、B、C、D、E、F等六段,本項目優先實施C、D段。
C、D段道路全長24.653公里,起于成佳航空園區,止于東環線交叉口。主要建設內容包括道路、橋涵、綠化、綜合管廊、生態修復、道路附屬設施及配套服務設施等。
來源:人民網-地方領導留言板
自貢住建局這次回復的消息可以知道:本次項目方案已經市委市政府審定同意,項目立項、初步設計等前期建設手續已辦理完成。由于本項目采用政府與社會資本合作(PPP)模式建設,PPP項目采購階段資料已報省財政廳審核,待審核通過后,進行招標并開工建設。預計本項目于2019年3月前開工建設。這就意味著,自貢的司機們以后,在s305舒適駕車的日子不會遠啦!
其實,早在今年1月,關于s305的改造方案就已經公示出來了。
改造方案
道路全長24.62公里、道路控制寬度70米
C段道路
全長8.7公里、寬32米
起點:成佳航空園區止點:貢井長土鎮
D段道路
全長15.9公里、寬57米
起點:貢井長土鎮止點:東環線交叉口
還將設置地下通道配套公交站
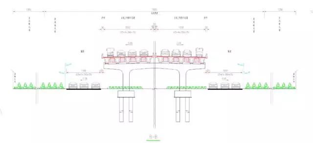
還有這些值得注意,其中將有三種路況形式
一種是雙向8車道的A-A

一種是雙向14車道包含高架的B-B
一種是雙向12車道的C-C
富榮產城融合帶基礎設施建設項目(C、D段)公示圖1
富榮產城融合帶基礎設施建設項目(C、D段)公示圖2
除了s305
其實今年自貢還將
規劃建設五條道路
北環路改造
起點:北環路內宜高速大山鋪出口
止點:北環路與縱三路交叉口
長度約1189米,寬度58米
最大坡度:1.64% 車道數:10車道
含有雙向機動車、人行道和中央分隔帶:人行道7.0m、機動車道20.25m、中央分隔帶3.5m
縱三路(暫定名)
起點:北環路與縱三路交叉口
止點:縱三路一期終點
長度約1160米,寬度:35米
最大坡度:0.9% 車道數:6車道
含有雙向機動車、人行道和中央分隔帶:人行道4.5m、機動車道11.5m、中央分隔帶3.0m
連接線(暫定名)
起點:連接線與北環路交叉口
止點:連接線與縱三路交叉口
長度約899米 寬度30米
最大坡度:0.38% 車道數:6車道
含有雙向機動車、人行道和中央分隔帶:人行道2.0m、機動車道11.25m、中央分隔帶3.5m
S206
起點:S206與北環路交叉口
止點:S206與園北路交叉口
長度約1180米 寬度:18米
最大坡度:5% 車道數:4車道
含有機動車、雙向人行道:人行道3.0m、機動車道12.0m
園北路(暫定名)
起點:園北路與縱三路交叉口
止點:園北路與S206交叉口
長度約1348米 寬度13米
最大坡度:1.65% 車道數:2車道
含有機動車、雙向人行道:人行道2.5m、機動車道8.0m
相信在不遠的將來
這幾條道路就會通車運行
自貢人的通行也會愈加便捷!
讓我們一起期待S305的改造吧,
相信自貢將來的交通將越來越好!
自貢,人杰地靈,道路四通八達
每一天都有新的變化!
來源:自貢在線








